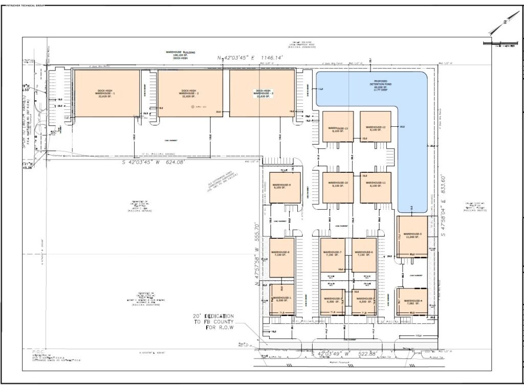
Rosenberg Business Center, Rosenberg, Texas

About The Project

Rosenberg Business Center, Rosenberg, Texas

Project in Progress: – In the process Entitlement working with the city of Rosenburg Planning Department. Projected timelines for the project to start site work is July 2023.

Approximately : 1095 sqft
Land : 14 acres