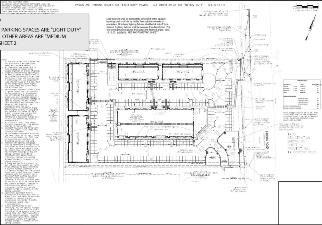
Baghdad Road Office Condo, Cedar Park, Texas (In Design)

About The Project

Baghdad Road Office Condo, Cedar Park, Texas (In Design)

Project in Progress: – Design in Final Phase – Permits expected in March 2023. Site work to start in April 2023.

Total – 3.36 Acres
Total Sqft – 38,590 Sqft